ZZVP自力式微壓調節閥選型依據
2022-02-21 09:44:30
151

■自力式微壓調節閥閥體
公稱通徑:DN25、32、40、50、65、80、100mm
公稱壓力:PN1.6MPa
法蘭標準:JB/T79.1-94、79.2-94等
閥體材料:鑄鐵(HT200)、鑄鋼(ZG230-450)、鑄不銹鋼(ZG1Cr18Ni9Ti、ZG1Cr18Ni12Mo2Ti)
閥芯材料:硬密封--不銹鋼(1Cr18Ni9Ti、1Cr18Ni12Mo2Ti)
閥芯材料:軟密封--不銹鋼鑲嵌橡膠圈
閥桿材料:不銹鋼(1Cr18Ni9Ti、1Cr18Ni12Mo2Ti)
流量特性:快開
使用溫度:≤80℃,
,
,ZZVP自力式微壓調節閥選型依據安裝、維護與調試1、安裝
(1)檢查整機零件是否缺損與松動,對使用有害人體健康的介質,必須進行強度、密封、泄漏與精度測試。
(2)在安裝前,對管道進行清洗(否則由于焊渣等管道垃圾,損壞閥芯密封面,導致閥門不能正常工作),閥門入口處要有足夠的直管段,并配有過濾器。閥體與管道的法蘭連接,要注意同軸度。
(3)安裝場地應考慮到人員與設備的安全,即便于操作,又有利于拆裝與維修。
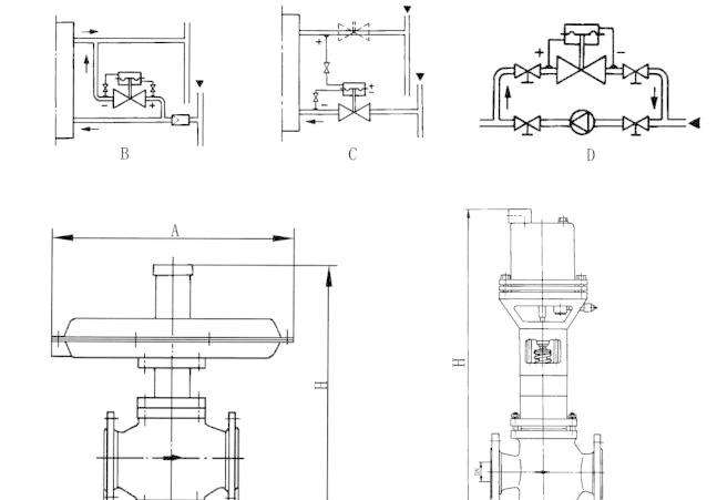
(4)閥門應正立垂直安裝在水平管道上,導壓管必須安裝在距離閥出口至少六倍于公稱通徑的閥后管道上。閥自重較大與有振動的場合,要用支撐架,盡量避免水平安裝。
(5)介質流動方向應與閥體上的箭頭指向一致。因微壓閥屬于精密儀表,其中膜片直接承受介質壓力,若閥門反裝或管道有反沖壓力,則膜片由于受壓過高導致膜片損壞,閥門不能工作。閥門應在環境溫度-25~+55℃場所使用。
(6)為使自控系統失靈或檢修閥門時,仍能連續生產,應設置旁路閥。
2、ZZVP自力式微壓調節閥選型依據維護:
(1)清洗閥門:對清洗一般介質,只要用水洗凈就可以。但對清洗有害健康的介質,首先要了解其性質,在選用相應的清洗辦法。
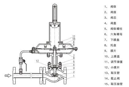
(2)閥門的拆卸:將外露表面生銹的零件先除銹,但在除銹前,要保護好閥座、閥芯、閥桿與推桿等精密零件的加工表面。拆裝閥座時應使用工具。
(3)閥芯、閥座:二密封面有較小的銹斑與磨損,可用機械加工的方法進行修理,如損壞嚴重必須換新。但不管修理或更換后的硬密封面,都必須進行研磨。
(4)閥桿:表面損壞,必須換新。
(5)壓縮彈簧:如有裂紋等影響強度的缺陷,必須換新。
(6)易損零件:密封墊片與O型圈,每次檢修時,全部換新。膜片必須檢查是否有可能發生裂紋、老化與腐蝕等痕跡,根據檢驗結果,決定是否更換,但膜片使用期一般多2~3年。
(7)閥門組裝要注意對中,螺栓要在對角線上擰緊,滑動部分要加潤滑油。組裝后應按產品出廠測試項目與方法調試,并在這期間,可更準確地調整填料壓緊力與閥芯關閉位置。
3、ZZVP自力式微壓調節閥選型依據調試
所需要壓力值是對執行器頂部的調節螺桿或螺母的操作而得到調整,打開頂部的防塵蓋,用扳手調整調節螺桿或螺母。順時針方向旋轉使設定壓力增大,逆時針旋轉則使設定壓力減小。安裝在微、差壓調節閥后的壓力表,可使工作人員借以觀察調整后的壓力設定值。

4、ZZVP自力式微壓調節閥選型依據注意事項
1)嚴禁調壓閥安裝后再進行焊接。
2)調壓閥投入運行前特別注意沖刷、清洗管道,防止焊渣、污物、卡在節流口,破壞密封面。造成使用前密封面先損壞,調壓閥失效的現象。
3)沖洗管道時應使調壓閥處于全開位置,便于污物、硬渣通過。與本文相關的論文:自力式煤氣調壓閥組